Kefalonia Escape
Preview only — see all hotel photos
See all 26 photos 1 /
26
Best options for your travel dates
Mostra hotel sulla mappa
Kefalonia Escape
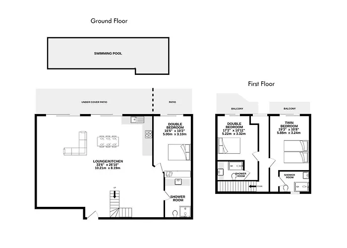
Gli ospiti possono godere di una vista sulla spiaggia sul mare dalla terrazza presso la villa Kefalonia Escape Kefalonia Island, situata a una distanza di 1 km dalla Spiaggia di Trapezaki.
Gli ospiti possono accedere al Monte Ainos a 4 km da, mentre il Castello di San Giorgio si trova a 6 km.
La villa Kefalonia Escape è dotata di vista sulla piscina. Il bagno comprende anche una cabina doccia.
La villa dispone di un angolo cottura attrezzato con un forno e un piano cottura per permetterti di cucinare. Gli ospiti possono cenare al ristorante Boho, situato a 600 metri. La fermata dell'autobus più vicina è KTEL Kefalonia es, a due passi da questa villa.
Ulteriori informazioni +
Nascondi -
Ti preghiamo di aspettare, stiamo controllando la disponibilità delle camere.
Stiamo cercando gli hotel
Servizi
Top Servizi
- Wi-Fi
- Parcheggio gratuito
- Piscina
- Aria condizionata
- Animali non ammessi
Servizi
Principali:
- Struttura non fumatori
- Wi-Fi
- Parcheggio gratuito
- Parcheggio fuori sede
- Check-in/check-out VIP
- Animali non ammessi
- Rivelatori di fumo
- Estintori
Tempo libero:
- Piscina esterna
- Lettini prendisole
- Terrazza solarium
- Giardino
- Aree per barbecue
Servizi in camera:
- Aria condizionata
- Terrazza
- Mobili da giardino